ゆーかページ 1/15までお取り置き SET Tセレクション(ボックス収納タイプ)|電動スクリーン
(3005件)
Pontaパス特典
サンキュー配送
14822円(税込)
149ポイント(1%)
Pontaパス会員ならさらに+1%ポイント還元!
送料
(
)
3004
配送情報
お届け予定日:2026.05.08 3:51までにお届け
※一部地域・離島につきましては、表示のお届け予定日期間内にお届けできない場合があります。
ロットナンバー
73136263371
お買い物の前にチェック!
Pontaパス会員なら
ポイント+1%
ポイント+1%
商品説明

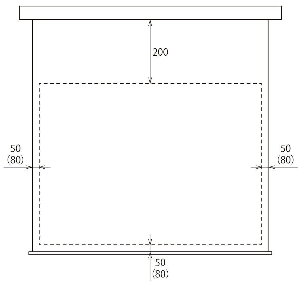
1/15までのお取り置き
| カテゴリー: | ゲーム・おもちゃ・グッズ>>>キャラクターグッズ>>>ピンズ・ピンバッジ・缶バッジ |
|---|---|
| 商品の状態: | やや傷や汚れあり","目につく傷や汚れがある |
| 配送料の負担: | 送料込み(出品者負担) |
| 配送の方法: | 佐川急便/日本郵便 |
| 発送元の地域: | 三重県 |
| 発送までの日数: | 2~3日で発送 |
レビュー
商品の評価:




4.8点(3005件)
- kuma1868
- おから蒸しパンとおから餅を作るために購入しました。 以前は別のショップで購入していましたが、あまりにも大量で賞味期限内に使いきれなかったので、このくらいが丁度良いです。
- masaki.nana
- 初めて買いましたが 色々なものにアレンジして使えて とてもよかったです。 リピします。
- よっすぃ様
- かなりのリピート歴です。いつもスムージーに加えたり、スープ・味噌汁に入れていますが、最近は料理にもチャレンジしています。
- タメコ3
- 量が使い切りやすく、国産なので、安心して使っています。 味噌汁やスープに入れて飲むと、おなかがいっぱいになりました。 とても溶けやすいです。
- カシュー☆
- おからクッキーやケーキを嫁が作ってくれます。 ふっくらと、とってもおいしくて、満足しています。 また、注文したいと思います。
- ゆかたんめん
- 美味しいおからパウダーだと思います。 クッキー、蒸しケーキ、おからの豆腐餅、唐揚げの衣・・・等に使っています。 価格も安く、メール便で発送してくれるのが便利。 しっかり梱包されてるので粉物でも安心してメール便注文できます。 発送もいつも素早くて助かっています。
- たゎりゎ
- ホットケーキミックスと混ぜて蒸しパンにして食べてます。さらさらなので口当たりも特に気になりません。 発送も早く、満足しています。
- michael.abc
- 初めて購入しました。そのまろやかさに驚きました! 野菜やちくわを味付け仕上げたところに振りかけただけで、超簡単に美味しいオカラが出来ました。 口当たりが違いますね。 他店でも「超微粉」と言ってますが、ウチには絶対コレです! リピート決定!良いお買い物が出来ました。有り難うございました。
- からくた
- とても使いやすいです。 糖質オフのスィーツとかつくる時、市販のおからパウダーだと、どうしても ザラザラ感が舌に残るのが嫌でした。 クックパッドで超微粉おからパウダーなるものがあると知って早速チーズケーキ つくりましたよ。パウダー同僚にも分けてあげて、喜ばれました。
- 野良猫寅次郎
- 以前に購入した時に、配送も速く賞味期限も1年近くあったので今回も二袋購入したけど、29年4月2日指定で届いた商品の賞味期限が29年9月3日で5ヶ月しかないです。さすがに5ヶ月は、少し残念でした。賞味期限これくらいでも、普通なんかな?私が、使うの遅すぎなんかな。でも商品は、気に入ってます。
- ちるこ0819
- 特に臭みもなく、お菓子作りやパン作りに加えて使っています。安いとおもったけど、そこまでたくさん使うものではないので、ちょっと持て余し気味…。
- space_cowboy8596
- 糖尿病の姪っ子の為に、色々なレシピを考え購入。 以前購入した際、粉がとてもなめらかで細かく、ハンバーグやケーキ、ビスケットなどもとても美味しく出来たので、姪っ子がとっても喜んでくれました。 彼女が来るときは必ずこのおからを購入しようと決めています。 今回はおからピザやグラタンなど、今回もとても喜んでくれました。
- 後藤充
- 国産で安心で、お安くて、助かってます 毎朝スープに混ぜて飲んだり、クッキー作ったりしました 扱い安いです^_^
- G roche
- ゆるく糖質制限していますが、おからパウダーがあるとパンもパンケーキも作れるので重宝しています。 ジッパー付きで安心。美味しいしお腹膨れるし便通良くなるのでおから大好きです♪
- chibi0822
- 粉末オカラ メール便で送っていただけるのでありがたいです もっと安い店もあるけど 4キロ10キロって 置き場所確保するだけでも大変 このくらいの分量で 送ってもらえたら ありがたいです
すべて見る
お店の情報
7,367
連絡・応対
4.3
配送スピード
4.3
梱包
4.3










